Præstebolig, Aabenraa

Ved siden af Nicolaihuset, på Sct. Nicolai Gade i Aabenraa, og ikke mere end et stenkast fra den flotte Sct. Nicolai Kirke. Opføres en ny præstebolig for Aabenraa Sogn.

I denne del af byen, er en stærk historisk ånd, hvor detaljerige murstensbygninger pryder gadebilledet, og desuden vidner om en tid, hvor det gode håndværk var i højsæde.

Den nye præstebolig ligger mellem to bygninger, som er fra hhv. 1918 (Kirkeplads 4) og 1964 (Nicolaihuset). Dette betyder et møde mellem ialt tre meget forskellige tidsaldre, hvorfor der laves tiltag, som imødekommer begge nabohuses historiske ånd. Udover bygningens overordnede, fysiske udformning, er det især gennem detaljer i murværket, at der skabes tilknytning til de eksisterende bygninger i området. Der tages således afsæt i detaljer som findes lignende i de omkringliggende, historiske bygninger, dog i en moderne tolkning.

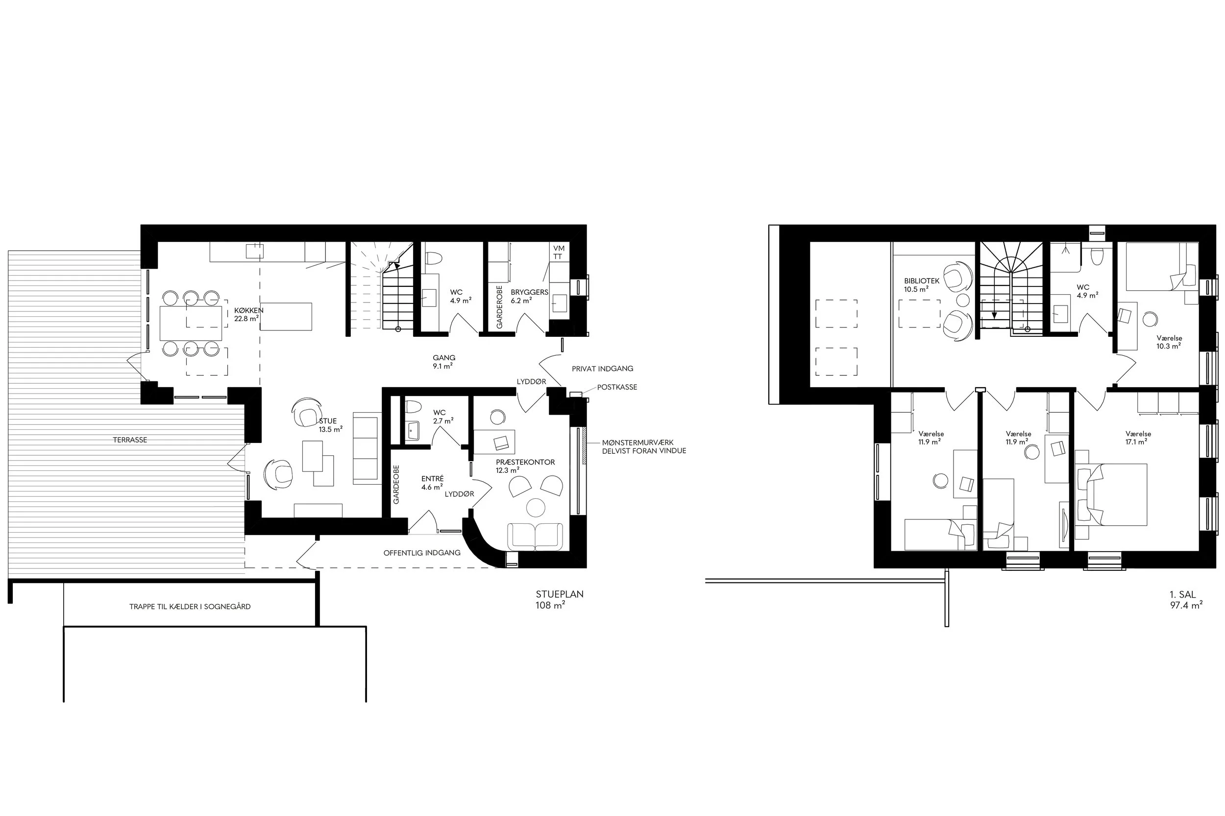
Præsteboligen består af køkken/alrum, stue og bryggers i stueplan, samt fire værelser og et opholdsrepos i åben forbindelse med køkken/alrummet, på 1. sal.

Foruden at danne bolig for præsten og dennes familie, er der i stueplan også indrettet et præstekontor med separat, overdækket indgang, hvor sognebørn kan komme til samtale med præsten. Dette område er effektivt lydadskilt fra resten af præsteboligen.


TYPE: PRÆSTEBOLIG

STATUS: 2024

STØRRELSE: 205 m2

KUNDE: AABENRAA SOGN

SAMARBEJDSPARTNERE: SWECO

LOKATION: AABENRAA